






Le projet s’inscrit dans un des sites les plus remarquables de Paris :
- Le pont Alexandre III, inauguré lors de l’exposition universelle de 1900, est un symbole de l’amitié Franco-Russe et le trait d’union entre les invalides et le Grand Palais
- Le Petit Palais et le Grand Palais, également construits pour l’exposition universelle de 1900, mettent en évidence l’essor technique de la révolution industrielle et son adaptation à l’architecture
- Les quais de Seine sont aujourd’hui le nouvel axe majeur des circulations « douces » du cœur de Paris
- La Seine, fleuve autour duquel la ville de Paris a pris naissance et s’est agrandie au fil du temps, va connaître de nouvelles fonctions autres que touristiques et de transport fluvial à l’occasion des jeux olympiques prochains
Ces divers éléments majeurs sont pris en compte à tous les stades de l’élaboration du projet, afin de permettre de créer une harmonie avec l’espace, tout en restant en dehors du « pastiche architectural » qui pourrait dénaturer ce site remarquable.
La transparence est mise en valeur dans la conception. Cette transparence, indispensable pour les riverains qui souhaitent regarder le fleuve lors de leur cheminement, est aussi nécessaire afin de permettre d’exposer les œuvres au grand public.
Cette transparence est mise en évidence à l’aide des éléments suivants :
- Utilisation de verre anti-reflet et d’acier à profils fins au niveau du pont principal
- Mobilier bas
- Transparence des toitures pour permettre un visuel à partir des quais hauts et du pont Alexandre III
- Disposition de cimaises dans l’axe des vues sur la seine, démontables et positionnés sur rails coulissants
- Franc-bord de la coque bas et à la hauteur du quai pour que la coque ne constitue pas un « écran » visuel
- Locaux techniques insérés dans la soute
Cette utilisation du verre / acier permet également de rester en continuité architecturale avec les toitures du Petit et Grand Palais.
Pour dynamiser le bateau sur toute sa longueur (39.5m), celui-ci se décompose de deux façons distinctes :
- La proue et la poupe se veulent épurées, en utilisant la transparence et la sobriété
- Le centre décompose la longueur du navire avec un style particulier
L’architecture présentée au milieu du navire reprend la symbolique des scènes de théâtre, avec des formes courbes et une continuité de la matière entre le plafond et les murs latéraux. Cet espace se veut un cadre qui attirera le regard des riverains sur les œuvres artistiques exposées.
Les expositions et performances pourront avoir lieu soit à l’intérieur du bateau, soit sur la terrasse située sous ce cadre.
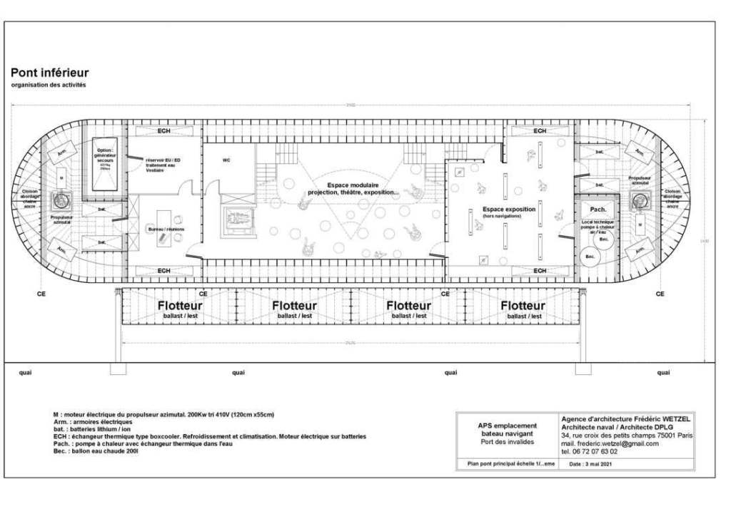
Cet espace est modulaire pour s’adapter à tous types d’événements. Une double hauteur est par ailleurs prévue pour créer une liberté volumétrique aux différents scénographes.
Aucune installation n’est crée sur le ponton flottant et le quai afin de permettre de garder ce visuel sur la « scène » et les œuvres exposées.
La toiture reprend cependant les lignes tendues du pont Alexandre III pour permettre l’homogénéité des éléments dans le site d’amarrage. La partie de couverture est inspirée des toiles tendues, avec une couleur blanc cassé et une peinture anti-reflet.
Les quais sont actuellement occupés par des promeneurs en journée et des guinguettes et bars en soirée. L’objectif de ce projet est d’amener le regard sur les œuvres artistiques qui seront proposées au fil de l’eau.
Les espaces du bateau projeté seront entièrement adaptables pour permettre d’accueillir aussi bien des espaces de projection, que des espaces de danse, des expositions de peinture et de sculpture, de théâtre que de photographie…
Des concours étudiants seront organisés avec différentes écoles d’art et de design. Des espaces d’exposition extérieurs et intérieurs seront mis à disposition des lauréats afin de permettre d’afficher leurs talents au public.





